最終更新:2026年01月20日
定休日:水曜日 営業時間:9:00~19:30
不動産買取・売却・購入はライフサービス > (戸建(売買))地域から探す > 大阪市淀川区 > 加島3丁目中古戸建 > 物件詳細
JR東西線「加島」駅徒歩3分・ルーフバルコニー・リビング吹き抜け・車駐車可・鉄骨造・前面道路幅員6m公道に接道











(※元利均等方式 金利5.00%まで ※返済年数5~50年まで入力できます)
(※ボーナスは年2回で計算しています。1000万円まで入力できます)
(※物件購入時、その他諸費用が発生する場合がございます)
| 所在地 | 大阪府大阪市淀川区加島3丁目 | ||
|---|---|---|---|
| 交通 | |||
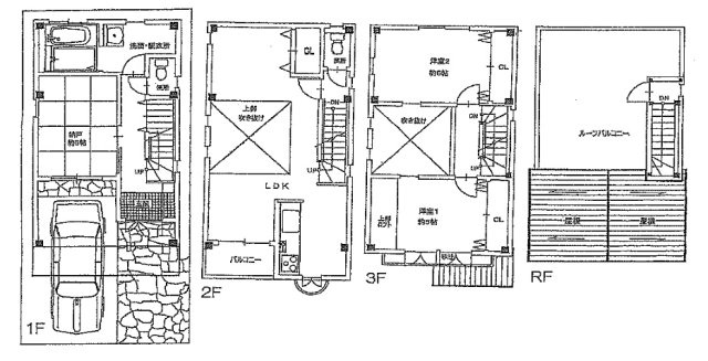
| 間取り/詳細 |
2LDK+1S(納戸)/ S 5.0帖/LDK 18.0帖/洋室 6.0帖/洋室 5.0帖 |
建物面積(坪数) | 93.41㎡(28.25坪) |
| 価格 | 3,180万円 | ||
| 駐車場/月額料金 | 有/- | ||
| 土地の敷金/保証金 | -/- | 借地料/借地期間 | -/- |
| 土地権利 | 所有権 | 土地面積(坪数) | 62.65㎡(18.95坪) |
| 傾斜地部分面積 | - | 路地状敷地 | - |
| 私道負担面積/セットバック | -/- | 高圧線下面積 | - |
| 地目/地勢 | 宅地/平坦 | 接道状況 | -(北東 公道 6.0m 間口 6.0m) |
| 建ぺい率/容積率 | 60%/300% | 用途地域 | 準工業 |
| 都市計画 | 市街化区域 | 種別/構造 | 中古一戸建/鉄骨造 |
| 階建 | 3階建 | 築年月(築年数) | 2002年 10月 (築23年) |
| 総区画数/販売区画数 | 1区画/1区画 | 向き | 北東 |
| 現況 | 居住中 | その他の法令上の制限 | 準防火地域 |
| 取引態様/引渡時期 | 仲介/相談 | 建築確認番号 | - |
| 物件番号 | 97770849 | 取引条件の有効期限 | 2026年02月01日 |
| 設備条件 |
|
||
| 備考 | 加島中公園まで164mです◎歩いて172mのところに淀川加島郵便局があります◎3口コンロの物件は、家族が多い人や友人などを招いて料理をふるまう機会が多い人におすすめです◎当社スタッフが大阪市淀川区や東西線加島付近の一戸建て探しをサポートいたします◎お気軽に地域の情報などもお尋ねください◎ | ||
| 取扱会社 |
|
||
| QRコード |
このQRコードを読み取ることで、スマホでも物件情報を確認できます。 |
||
※地図上に表示される物件の位置は付近住所に所在することを表すものであり、実際の物件所在地とは異なる場合がございます。
大阪市淀川区以外の市区町村から探す