最終更新:2026年02月16日
定休日:水曜日 営業時間:9:00~19:30
不動産買取・売却・購入はライフサービス > (戸建(売買))地域から探す > 大阪市淀川区 > 加島2丁目中古戸建 > 物件詳細
4LDK/ハイルーフ車駐車可/南側幅員18m公道接道/改装履歴有/設備充実/JR東西線「加島」駅徒歩11分/屋根裏収納有











(※元利均等方式 金利5.00%まで ※返済年数5~50年まで入力できます)
(※ボーナスは年2回で計算しています。1000万円まで入力できます)
(※物件購入時、その他諸費用が発生する場合がございます)
| 所在地 | 大阪府大阪市淀川区加島2丁目 | ||
|---|---|---|---|
| 交通 | |||
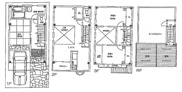
| 間取り/詳細 |
4LDK/ 洋室 6.5帖/LDK 23.0帖/洋室 8.5帖/洋室 6.5帖/洋室 4.5帖 |
建物面積(坪数) | 110.25㎡(33.35坪) |
| 価格 | 2,940万円 | ||
| 駐車場/月額料金 | 有/- | ||
| 土地の敷金/保証金 | -/- | 借地料/借地期間 | -/- |
| 土地権利 | 所有権 | 土地面積(坪数) | 61.24㎡(18.52坪) |
| 傾斜地部分面積 | - | 路地状敷地 | - |
| 私道負担面積/セットバック | -/- | 高圧線下面積 | - |
| 地目/地勢 | 宅地/平坦 | 接道状況 | 一方(南 公道 18.0m 間口 3.9m) |
| 建ぺい率/容積率 | 80%/200% | 用途地域 | 第一種住居 |
| 都市計画 | 市街化区域 | 種別/構造 | 中古一戸建/木造 |
| 階建 | 3階建 | 築年月(築年数) | 2012年 10月 (築13年) |
| 総区画数/販売区画数 | 1区画/1区画 | 向き | 南 |
| 現況 | 居住中 | その他の法令上の制限 | 準防火地域 |
| 取引態様/引渡時期 | 仲介/相談 | 建築確認番号 | - |
| 物件番号 | 99647990 | 取引条件の有効期限 | 2026年03月01日 |
| 設備条件 |
|
||
| 備考 |
・引渡し猶予10日間要。 ・買換特約有。 |
||
| 取扱会社 |
|
||
| QRコード |
このQRコードを読み取ることで、スマホでも物件情報を確認できます。 |
||
※地図上に表示される物件の位置は付近住所に所在することを表すものであり、実際の物件所在地とは異なる場合がございます。
大阪市淀川区以外の市区町村から探す