最終更新:2026年01月20日
定休日:水曜日 営業時間:9:00~19:30
不動産買取・売却・購入はライフサービス > (マンション(売買))地域から探す > 大阪市淀川区 > リーガル塚本第6 > 物件詳細
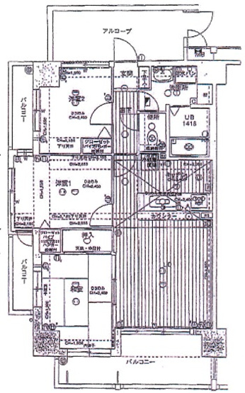
上層階/三方角部屋/全室採光有/陽当り良好/ワンフローに2部屋/全居室収納有/全室エアコン設置可能/2面バルコニー/JR東海道本線「塚本」駅徒歩6分
※写真や図と実際の現状とが異なる場合は現状を優先させていただきます。











(※元利均等方式 金利5.00%まで ※返済年数5~50年まで入力できます)
(※ボーナスは年2回で計算しています。1000万円まで入力できます)
(※物件購入時、その他諸費用が発生する場合がございます)
| 所在地 | 大阪府大阪市淀川区塚本4丁目1-5 | ||
|---|---|---|---|
| 交通 | |||
| 間取り/詳細 |
3LDK 洋室/洋室/和室 |
||
| 専有面積/バルコニー面積 | 66.54㎡/14.88㎡ | ルーフバルコニー面積/テラス面積/専用庭面積 | -/-/- |
| 価格 | 3,780万円 | ||
| 管理費 | 17,970円 | ||
| 修繕積立金 | 17,300円 | 修繕積立基金 | - |
| 権利金 | - | 駐車場/月額料金 | -/- |
| 土地の敷金/保証金 | -/- | 借地料/借地期間 | -/- |
| 土地権利 | 所有権 | 国土法届出要否 | 不要 |
| 用途地域 | 準住居 | 地勢 | 平坦 |
| 種別/構造 | 中古マンション/鉄筋コンクリート | 向き | 南東 |
| 築年月(築年数) | 1997年 3月 (築28年) | ||
| 所在階/階建 | 7階/9階建 | 棟総戸数/販売戸数 | 22戸/1戸 |
| 管理組合有無 | 有 | 管理形態 | 管理会社に全部委託 |
| 管理員の勤務形態 | 日勤 | 管理会社 | グローバルコミュニティ株式会社 |
| 取引態様 | 一般媒介 | 現況 | 空家 |
| 引渡し | 相談 | 建築確認番号 | - |
| 物件番号 | 99685560 | 取引条件の有効期限 | 2026年02月01日 |
| 設備条件 |
|
||
| 取扱会社 |
|
||
| QRコード |
このQRコードを読み取ることで、スマホでも物件情報を確認できます。 |
||
※地図上に表示される物件の位置は付近住所に所在することを表すものであり、実際の物件所在地とは異なる場合がございます。